

Чертёж брусового дома – важный строительный документ, позволяющий наглядно представить будущее здание, определить его размеры и пропорции, составить представление о расположении комнат и других важных параметрах. Разработать чертежи деревянных домов из бруса без специального образования достаточно сложно, поэтому проще обратиться в архитектурное бюро или строительную компанию. Однако если вы хотите получить дом с необычной индивидуальной планировкой, можно попробовать себя в самостоятельной разработке.


Что должно обязательно входит в чертёж
Составление чертежей начинается с обдумывания плана и определения своих финансовых возможностей. Если вам не требуется особо оригинальное строительство, сегодня можно скачать чертежи домов из бруса бесплатно на специализированных сайтах, а затем доработать их и добавить все особенности будущего дома вашей мечты. При этом любые изменения желательно согласовывать с опытными архитекторами, чтобы избежать ошибок в конструкции.
Необходимо заранее представлять, как будет использоваться дом. Если предполагается строительство небольшого загородного жилища, чертёж дома из бруса 6х6 м станет оптимальным решением, не требующим больших расходов. Чем больше площадь дома, тем сложнее правильно рассчитать планировку.
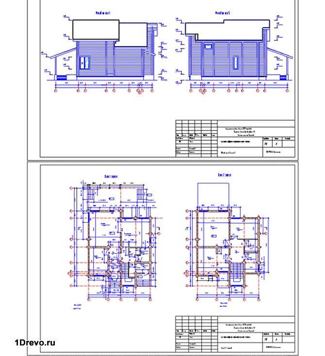
Комплект чертежей для строительства включает следующие изображения:
- Схема участка и расположение дома на участке. При этом сразу придётся решать вопрос с этажностью: одноэтажное здание занимает большую площадь на участке, двухэтажное обычно стоит дороже. Средним по цене вариантом может стать возведение дома с мансардой – она обойдётся дешевле полноценного второго этажа, и при этом позволит получить дополнительную площадь.


- Фасад здания и поэтажные планы. Владелец должен просчитать размеры и расположение комнат. Необязательно составлять чертежи домов с бруса на бумаге: современные компьютерные программы помогут наглядно представить любое здание. Дом планируется с учётом возможного расширения семьи: если предполагается рождение детей или переезд пожилых родственников, это нужно сразу учитывать при проектировке.
- Изображение дома в разрезе. Оно позволяет представить высоту стен, расположение коммуникаций, печных труб и т. д.
- План фундамента. Обычно для деревянных легких зданий выбирается или мелкозаглублённый ленточный, или столбчатый фундамент. В первом случае указывается общая протяжённость бетонной ленты, во втором – количество столбов и их размеры, а на чертеже должно отображаться их расположение.
- Подробный проект включает также схему раскладки балок пола, межэтажных перекрытий и стропил. Указывается их расположение, количество, толщина.
- Экспликация помещения. Это может быть самостоятельный документ или часть чертежа. Экспликация – это перечень помещений с указанием площади и некоторыми иными техническими параметрами. Обычно она составляется в виде таблицы, данные о площади собираются по контурам каждого помещения в доме.
Если предполагается строительство домов из бруса, чертежи позволяют составить полное представление о том, сколько потребуется материалов, как будут расположены фундамент, стены и другие элементы дом. Самостоятельная разработка полного комплекта чертежей не только отнимает много времени, но и требует специальных знаний, поэтому результат требует обязательной консультации специалиста.


С чего начать работы по проектировке
Проектировочные работы – первая и самая важная часть строительных работ, так как от них зависит успешность всего строительства. Готовые чертежи домов с бруса редко полностью устраивают будущего владельца, так как они не учитывают особенностей расположения участка, индивидуальных требований к планировке, расположению санузлов и т. д. Первые шаги любого строительства ещё до начала разработки чертежей:
- Выбор материала для строительства. Чертежи домов из клеёного бруса будут несколько отличаться от проектов зданий из бревна. Это связано не только с особым сечением и размерами материала.


- Геологическая разведка. От особенностей участка зависит тип фундамента, на выбор влияет уровень грунтовых вод и тип почвы. Если вы сразу обращаетесь в давно работающую компанию, вам помогут выбрать оптимальный фундамент, так как специалисты уже работают в этой местности.
- Также нужно определиться с тем, как и откуда будут прокладываться коммуникационные пути. Проблем не возникает, если в посёлке уже проложен газ, есть электричество и водопровод. Если их нет, необходимо будет проектировать котельную с местом для хранения угля, а также продумывать расположение скважины на участке.
После того как все параметры будут определены, можно приступать к проектировке, рассчитывая расположение всех элементов. Когда проект готов, составляется смета, после чего обычно требуется внесение изменений. Стоимость дома можно значительно снизить, если, к примеру, выбрать вместо клеёного обычный профилированный брус, подобрать недорогую отделку и т. д.